On vous rappelle en moins de 2h ?

Pour visiter dès demain, appelez-nous au 05 56 47 91 77. La réactivité, c'est notre métier.

Appelez-nous

Appartement T5 avec jardin et grande terrasse – Bidart

850000€ Bidart
  • Partager la fiche par
  • partager par mail
Télécharger la fiche en PDF

Appartement T5 avec jardin et grande terrasse – Bidart

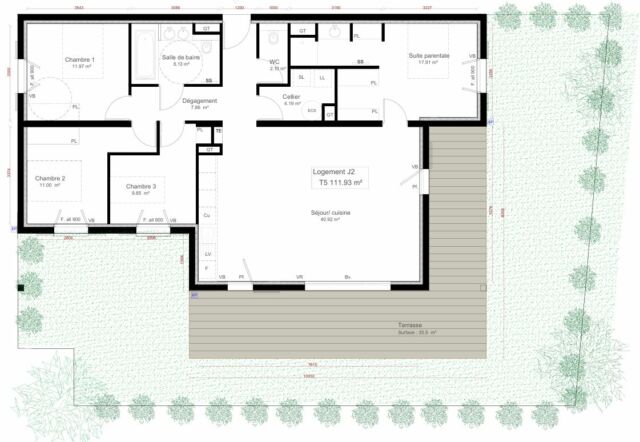
Idéal pour une famille ou un investissement patrimonial, ce T5 en rez-de-jardin lumineux offre un cadre de vie spacieux et confortable dans un environnement calme et résidentiel, à proximité des commerces, écoles et transports.

D’une surface de 111,93 m², il se compose d’un séjour généreux avec cuisine ouverte, de quatre chambres confortables, de deux salles de bain modernes, d’une terrasse de 35,5 m² exposée Sud et d’un jardin de 98,5 m², parfaits pour profiter des repas en extérieur et des moments en famille.

Le bien est vendu avec 3 places de parking privatives dans une résidence sécurisée.

Caractéristiques

  • Surface habitable : 111,93 m²

  • Terrasse : 35,5 m²

  • Jardin : 98,5 m²

  • Étage : Rez-de-chaussée

  • Orientation : Sud

  • 3 places de parking privatives

  • Résidence sécurisée

Prix TTC : 850 000 € (frais d’agence 5 % HT inclus charge vendeur).

Bidart bénéficie d’un cadre de vie agréable et dynamique au cœur du Bassin d’Arcachon, offrant un accès facile aux commodités, commerces, écoles et transports. Un appartement rare, idéal pour habiter ou investir dans une zone prisée et familiale.

Pour plus d’informations ou organiser une visite, contactez Julien Liot – 06 48 55 32 81 – jliot@jlpartners.fr

JL Partners Maison et Vie, une marque du Groupe JL Partners
8 Avenue de Terrefort – 33 520 Bruges – 05 56 47 91 77

Mots clés en rapport avec cette annonce : appartement, T4, Bidart, logement familial, surface 91,82 m², jardin 68 m², terrasse 18 m², rez-de-chaussée, orientation Est, lumineux, séjour, cuisine ouverte, trois chambres, salle de bain moderne, résidence sécurisée, 2 places de parking, investissement immobilier, résidence principale, locatif, appartement moderne, confort, calme, environnement résidentiel, bien rare, espace extérieur, terrasse agréable, jardin privatif, exposition optimale, proximité commerces, écoles, transports, Côte Basque, Bidart, Guéthary, Biarritz, Anglet, Saint-Jean-de-Luz, Ascain, Urrugne, Cambo-les-Bains, Arcangues, emplacement stratégique, quartier dynamique, attractif, opportunité, valeur patrimoniale, cadre de vie agréable, appartement lumineux, appartement à vendre, prix 599 000 €, frais d’agence inclus, accessibilité, bon état, logement fonctionnel, appartement familial, investissement locatif patrimonial, vue dégagée, résidence moderne, espace modulable, confort familial, terrasse ensoleillée, jardin ensoleillé.

  • Prix (Hors FAI) 850 000,00€
  • Montant de la commission 42 500,00€
  • Superficie 111.93 m²
  • Activité Appartement
  • Référence VTE25191-23
  • Localisation Bidart

Ce bien vous intéresse ? Contactez-nous

    JL Partners 2025 | Tous droits réservés